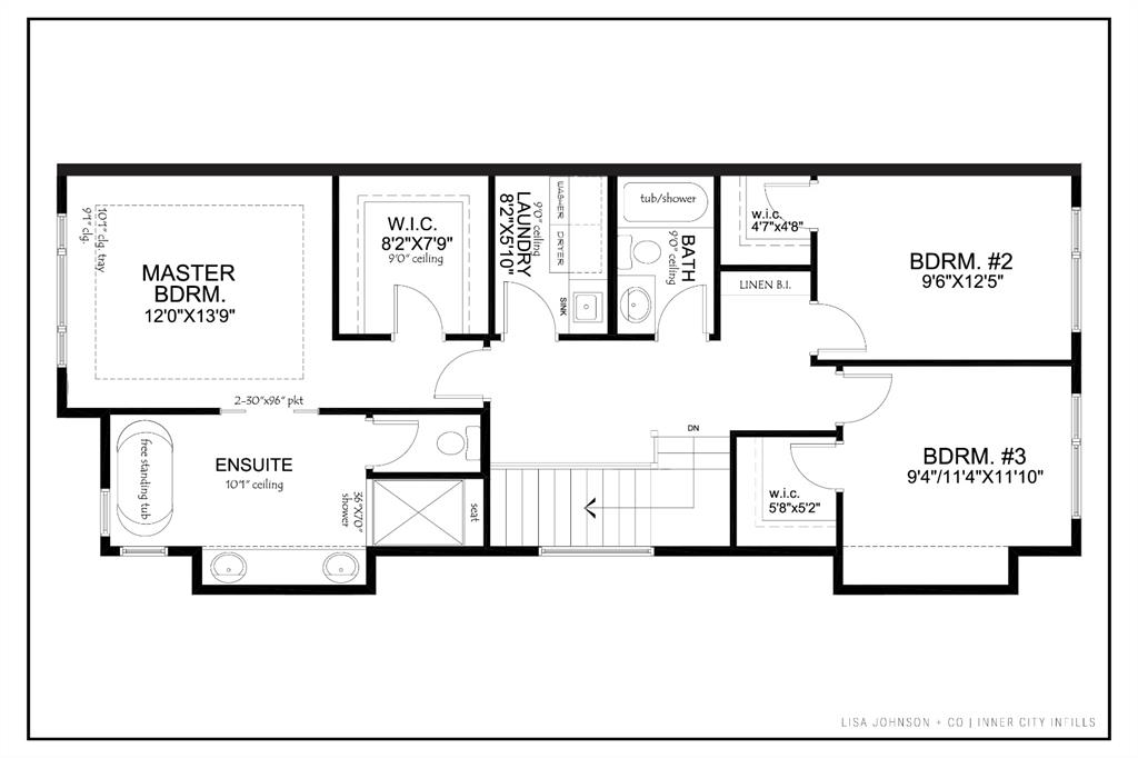
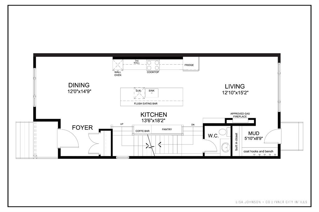
COMING THIS SUMMER TO MOUNT PLEASANT! Surrounded by parks, steps to Confederation Park and 4th Street amenities – you won’t want to miss this PREMIUM SEMI- DETACHED home w/ over 2,590 sq ft of living space. Complete w/ 4-BEDS, SOUTH BACKYARD, high-end finishes, & luxury upgrades including eng. hardwood flooring, 10’ ceilings, & custom detailing throughout. The open-concept main floor features open views into the main living/dining areas from the spacious front foyer & an impressive, upscale kitchen. Offering custom-built cabinetry, a large central island, a flush eating bar, premium stainless- steel appliances, large pantry & a built-in coffee bar (your new favourite part of your home!). The spacious living room enjoys an inset gas fireplace w/ tile surround & built-in cabinetry w/ large sliding glass doors that take you out to the South-facing backyard. A rear mudroom w/ a bench, closet, & coat hooks keep your family organized & a gorgeous powder room finishes off the main floor. The second level hosts the primary suite featuring a 10’ tray ceiling, a large walk-in closet, & a double-sided pocket door leading you into the 5-pc ensuite w/ dual vanity, heated floors, a stand-up shower w/ a glass enclosure, a free-standing soaker tub, & a private water closet. Two additional bedrooms have walk-in closets & share the main 4pc bathroom w/ a quartz counter, an under-mount sink, & a tub/shower combo. The fully finished basement makes the perfect entertainment space w/ a large family room, a wet bar w/ sink, & a massive 4th bedroom w/ a walk-in closet & easy access to a 4pc bathroom. Mount Pleasant is a beautiful, mature community made for families & professionals alike. Outdoor activities & trips to the dog park are easy w/ Confederation Park, & the Confederation Park playground, only two blocks away, the Queen’s Park Village Off-Leash Area a short 12-min walk away through the park, & the Mount Pleasant playground & outdoor rink are only half a block down the street! And when summertime hits, you can cool off in the community-favourite outdoor pool, only 10-min down the quiet neighbourhood roads. Activities & eateries are abundant & conveniently close w/ easy access to North Mount Pleasant Arts Centre, 4th Spot Kitchen & Bar, Velvet Café, & Milk Ice Cream! Nearby schools include St. Joseph Elementary Junior High School & Ecole de la Rose Sauvage. Plus, commuting around the city is easy w/ 16th Ave nearby & easy navigation to 14th Street or John Laurie Blvd to get around the city! This is the perfect house and community to call home!