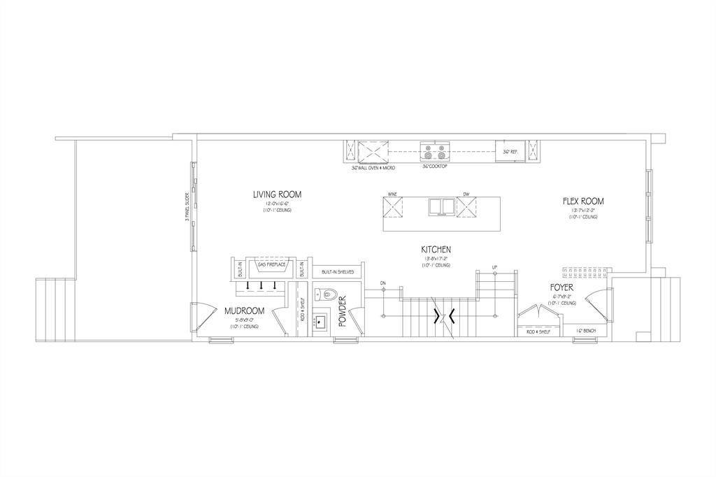
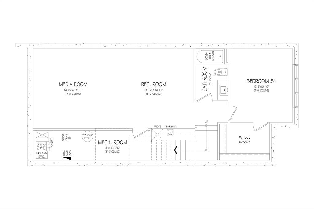
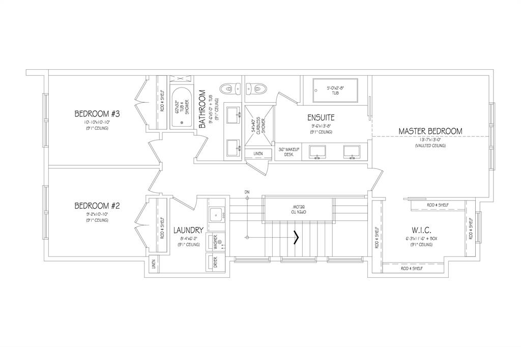
Located on a beautiful street filled with high-end infill homes, this is the timeless, modern infill you’ve been waiting for! This brand-new 4-BED, 3.5-BATH semi-detached infill in KILLARNEY has no detail overlooked, and your family will fall in love w/ the floorplan and features throughout! Each inch of the home is uniquely designed to utilize the space expertly while adding the modern, upscale touches you expect from a new infill. The main floor has hardwood floors and 10’ ceilings, a spacious, bright foyer w/ a built-in closet and bench, w/ views into the front flex space and the rest of the bright and spacious main floor. The bright, central kitchen draws you in w/ ceiling-height white lacquered cabinetry with lots of upper and lower drawers, a contemporary backsplash, clean white quartz countertops, and a full stainless steel appliance package. The central island offers your family flush bar seating and a built-in space for a wine fridge – a nice bonus to this impressive kitchen! Complementing the modern, upscale feel is the large living room w/ a gas fireplace showcasing a full-height tile surround and built-in millwork. The rear mudroom has a bench with hooks and a built-in closet for all your storage needs. The elegant powder room is nicely tucked away a few steps down off the main floor and features a soaring ceiling, a full-height mirror, and a designer light fixture. Custom touches continue upstairs with the vaulted primary suite, complete with oversized East-facing windows and an extra-large walk-in closet with window and built-in millwork. The suite features a spa-like 5-pc ensuite w/ pocket door entry, curbless shower w/ built-in bench, soaker tub, and double vanity w/ dedicated makeup desk. Two secondary bedrooms feature large windows, custom closets and built-in shelving and share the use of the 5-pc bathroom with dual vanity. The upper floor also has a convenient and spacious laundry room w/ a sink, tile backsplash, folding counter, cabinetry, sink, and an additional linen closet. The living space continues into the FULLY DEVELOPED BASEMENT w/ expansive media and rec room, full wet bar w/ bar fridge and sink, fourth bedroom w/ walk-in closet, and a full 4-pc bathroom. An infill this incredible needs a community to match, and Killarney does just that! This home is just off Richmond Rd for easy access around the neighbourhood and into Marda Loop. It is close to Bones Barks N’ Baths, Rising Star Academy, Foodway Grocery, and Canelo’s Ice Cream. Richmond Green playground, sports fields, and tennis courts are a quick 5-min walk away, and Marda Loop is just a hop across Crowchild! Enjoy quiet, family-friendly living in the inner-city w/ lots of shopping, restaurant, and recreation options nearby and a short daily commute downtown. This home is the one you’ve been waiting for! * Home is under construction and fully customizable*