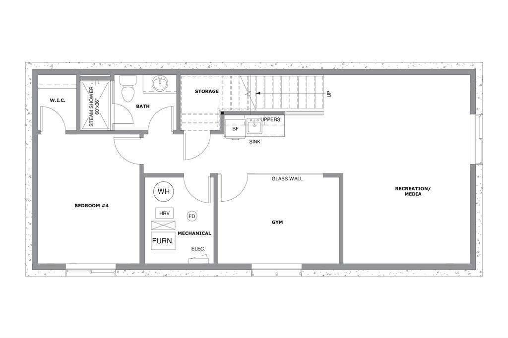
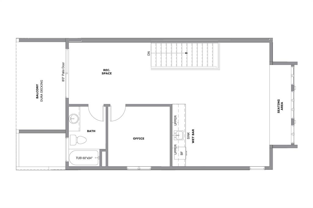
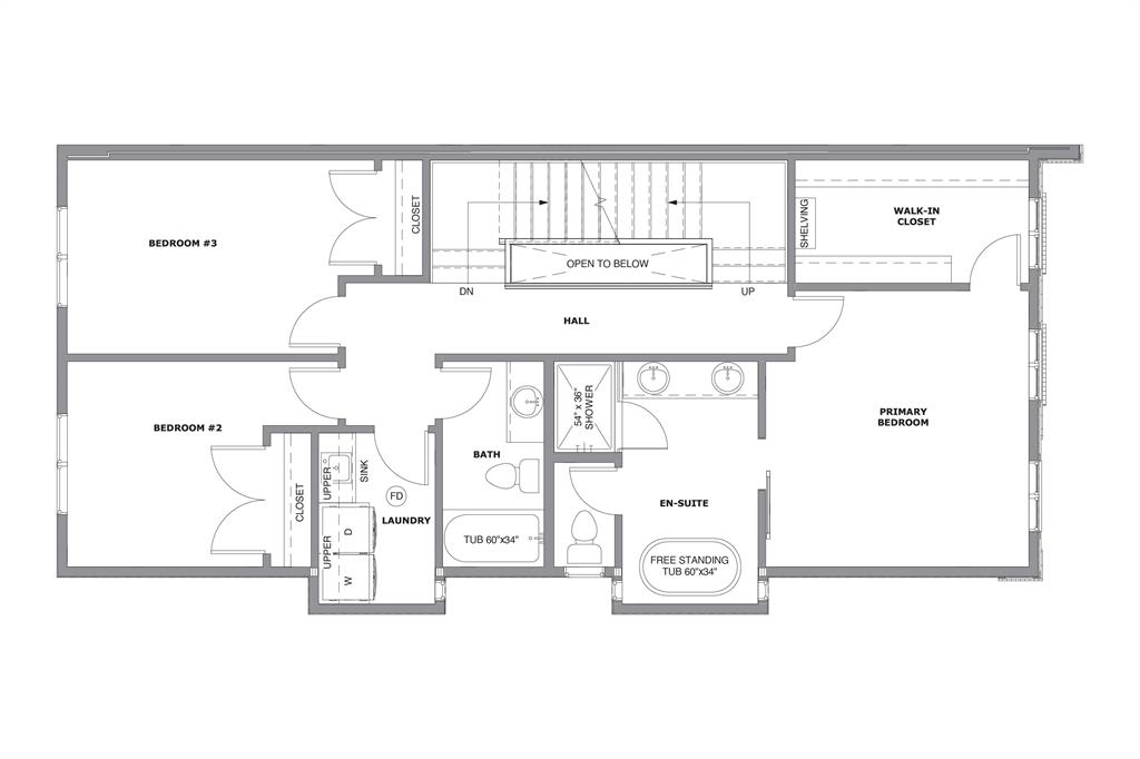
Now complete, move-in today! 4-BEDS, a HOME GYM, plus a dedicated OFFICE ON THE THIRD FLOOR are found across 3,300+ sq ft of living space, making this stunning, modern 3-STOREY semi-detached infill in the heart of ALTADORE your dream home! The fantastic curb appeal is met w/ natural light from the numerous windows on the front of the home as you enter into the front foyer & formal dining room w/ built-in cabinetry & coffee station. The extensively upgraded kitchen will soon become the heart of the home, w/ a sizeable island, plenty of upper cabinets & lower drawers w/ soft-close hardware, & a built-in pantry. The kitchen also features a premium JennAir S/S appliance package that includes a French door refrigerator, gas range, built-in hood fan, built-in microwave, & dishwasher. The entire main floor is drenched in sun all day by SOUTH-FACING 10-ft sliding glass doors, creating a bright living room while also giving you access to the backyard, including the fully built exposed aggregate deck, while the focal point of the room is the gas fireplace w/ quartz detailing & custom millwork. A spacious mudroom features a built-in closet, a bench w/ hooks, & a very private powder room w/ a lovely linear mirror, a quartz countertop, & vessel sink. Upstairs, you’ll find two secondary bedrooms w/ built-in closets, a main 4-pc bath w/ tub/shower combo w/ full-height tile surround, a good-sized laundry room w/ cabinetry & sink, plus a large walk-in linen closet. The primary quarters feature ceiling-height windows, a sizeable walk-in closet w/ built-in storage, plus a beautiful 5-pc ensuite w/ a freestanding soaker tub, heated tile floors, a walk-in shower w/ full-height tile (roughed-in for steam), rain showerhead, & a bench. Drenched in natural light, the THIRD FLOOR offers an additional living space and is completed w/ large rec area with custom built in media centre, a full wet bar, a 4-pc bath, a private office space with built-ins, & South facing balcony. Downstairs, the fully developed basement offers your family another large entertainment area, highlighted by another full wet bar w/ custom built-in cabinetry, a sink, & space for a bar fridge! The home gym has a 10-ft glass wall, making the room open & spacious, & the 4th bedroom is perfect for teens or a guest bedroom, w/ a walk-in closet & direct access to the 3-pc bath w/ glass shower. Altadore is a popular inner-city community, ideally located a quick 5-min bike ride to all Marda Loop offers & is close to several parks/green spaces & private & public schools – including Flander’s Park, Dr. Oakley Playground, the Glenmore Athletic Park & Aquatic Centre, Sandy Beach & River Park, and more! With quick access to major roadways, including Crowchild Trail & 14th St, this is the perfect location for young professionals & couples who appreciate easy accessibility downtown & around the city!