Courtesy of Lisa Johnson of RE/MAX House of Real Estate
LIST PRICE
$1,100,000
1256 Rosehill Drive NW
Sold
Courtesy of Lisa Johnson of RE/MAX House of Real Estate
More information
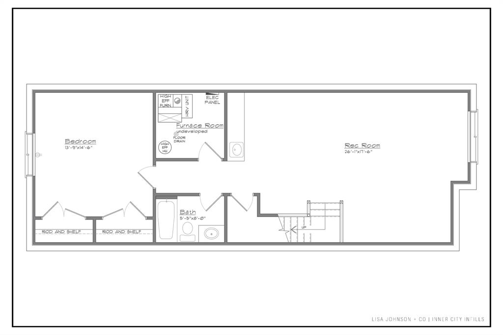
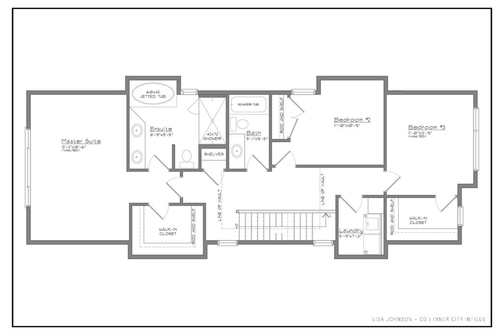
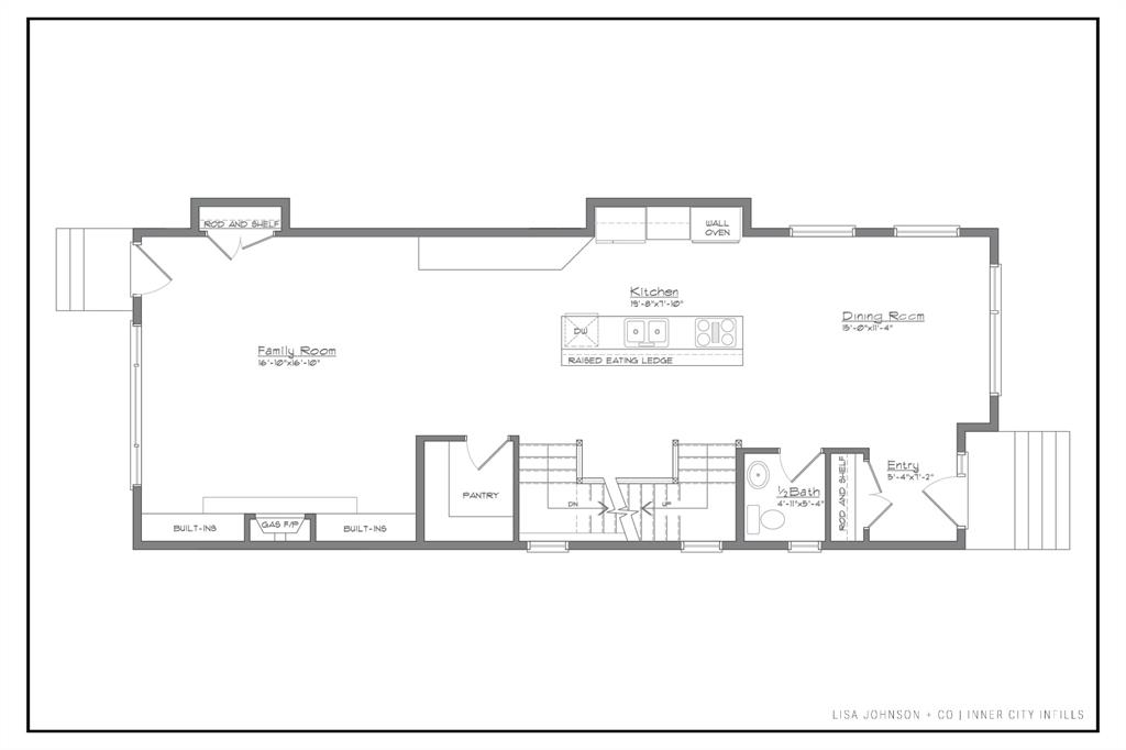
Features & amenities
- Built-in Features
- Closet Organizers
- Double Vanity
- High Ceilings
- Kitchen Island
- No Animal Home
- No Smoking Home
- Pantry
- Storage
- Walk-In Closet(s)
- Wet Bar
- Wired for Data
- Wired for Sound
- Back Lane
- Back Yard
- Close to Clubhouse
- Front Yard
- Interior Lot
- Landscaped
- Rectangular Lot
- See Remarks
- Sloped
- Street Lighting
- Treed
- Heating Forced Air, Natural Gas
- Fireplace 1
Additional details
- Type Residential
- Subtype Detached
Listing is presented by
Lisa Johnson + Co | Inner City Infills
RE/MAX House of Real Estate