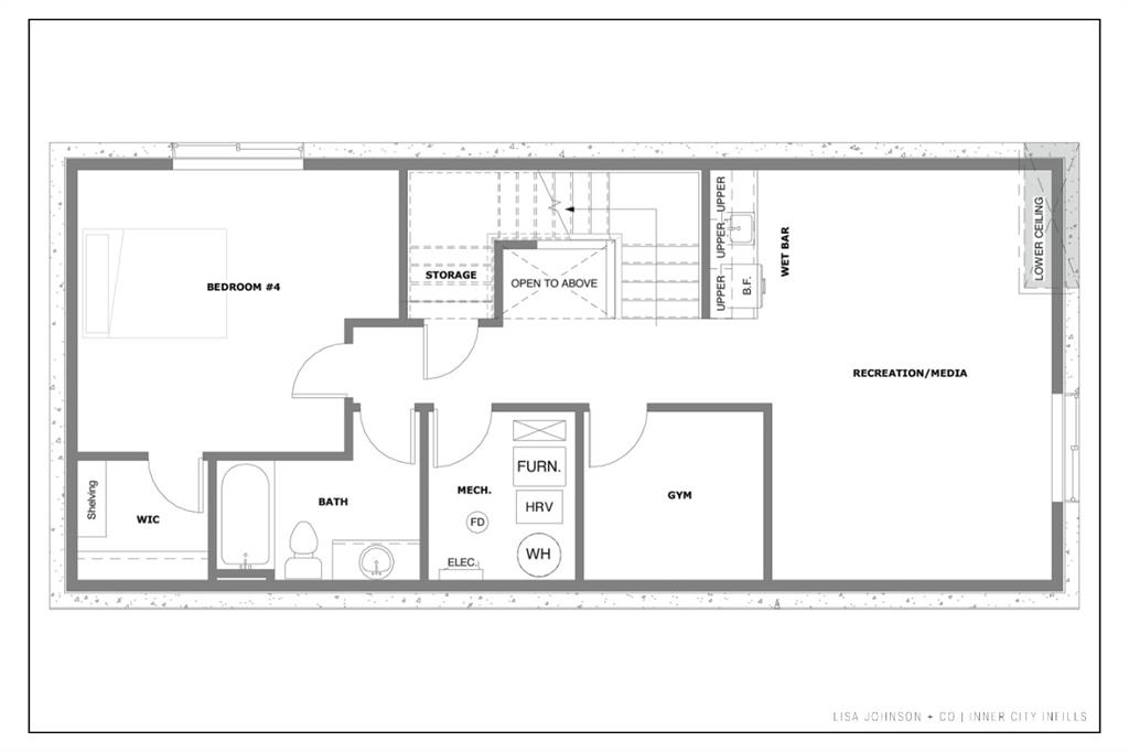
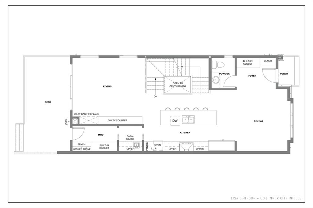
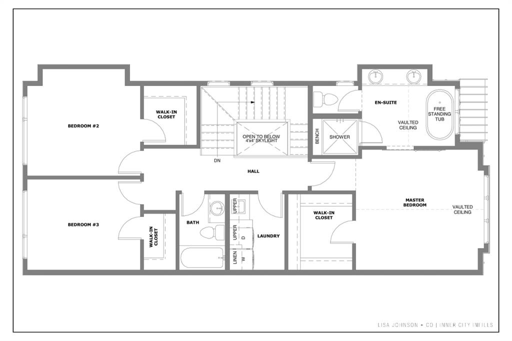
Almost completed, this upcoming BRAND-NEW semi-detached infill is on a quiet, mature street in Rosscarrock. Built by Ace Homes, it offers top-notch finishes with over 2,600 ft of living space across three levels, plus 4 BEDROOMS and 3 FULL BATHROOMS. Well thought out this home offers many upgrades that you wouldn’t typically find in an infill from the chef’s inspired kitchen w/a walkthrough coffee counter & butler’s pantry, 10ft ceilings, and a custom rear mudroom with lots of storage this home appeals to the buyer who wants something out of the ordinary. The central kitchen features ceiling-height custom cabinetry with undermount lighting, a modern tile backsplash, a built-in pantry, designer pendant lights, and a massive island with ample bar seating. This property also has a premium stainless steel appliance package! The spacious living room focuses on a stunning 2-way gas fireplace offset with a built-in TV counter and offers easy access to the rear deck and backyard through dual glass sliding doors, nicely combining your indoor/outdoor living spaces. Around the corner is a coffee counter/butler’s pantry with a bar sink and lots of cabinet storage & is a perfect space for small appliance storage and to keep your morning coffee frenzy hidden away. Tucked behind the coffee bar area is the rear mudroom with tons of built-in storage, a built-in bench, and storage lockers. Finishing off this level, the large dining room offers a custom feature wall and oversized windows, allowing lots of natural light into the home. Upstairs the elegant master suite features soaring vaulted ceilings, oversized windows, and a massive walk-in closet with ample storage for both his and her needs! The spa-inspired master ensuite is elegantly finished with heated tile floors, quartz countertops, dual under mount sinks, a freestanding soaker tub, and a stunning glass shower with a built-in bench and steam rough-in. Two additional good-sized bedrooms, each with walk-in closets, share the 4-piece bathroom with tile floors, modern vanity and a fully tiled tub/shower combo. A large laundry room with a sink and custom cabinetry completes the upstairs. Downstairs, the fully developed basement has upgraded carpet, a large 4th bedroom, and a spacious rec room with a wet bar. Rare for many homes, this level also features a home gym area. Rosscarrock is a great family-oriented neighbourhood conveniently located close to Westbrook Mall, Shaganappi Point Golf Course, the Bow River Pathways, and just minutes from downtown via Bow Trail! *Builder offering Free Air Conditioning* Photos are from a similar project.