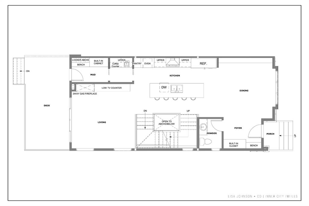
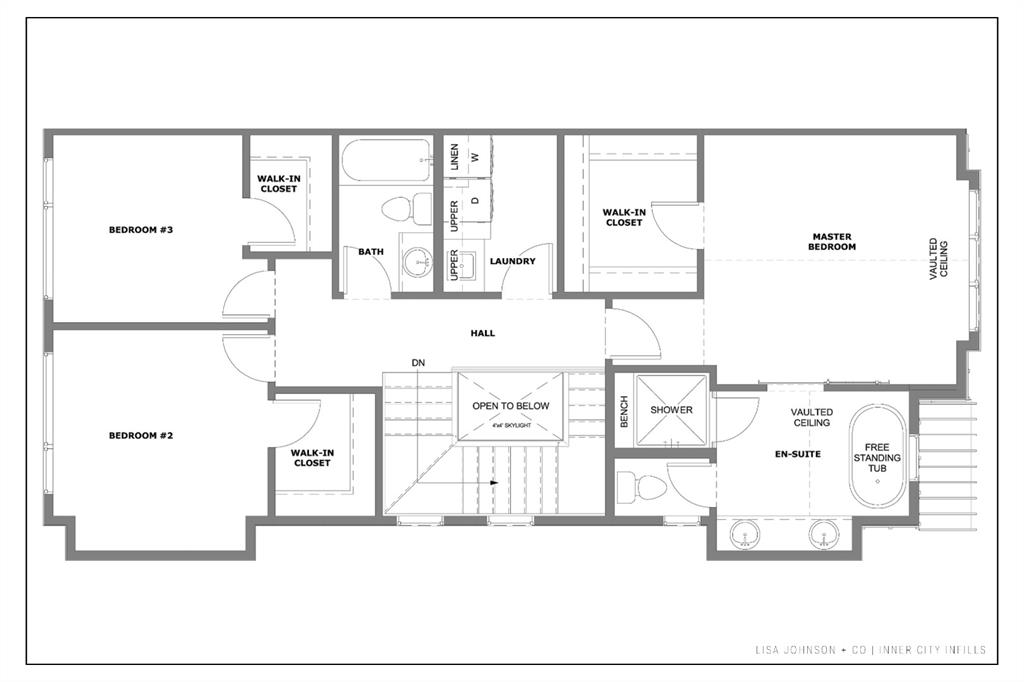
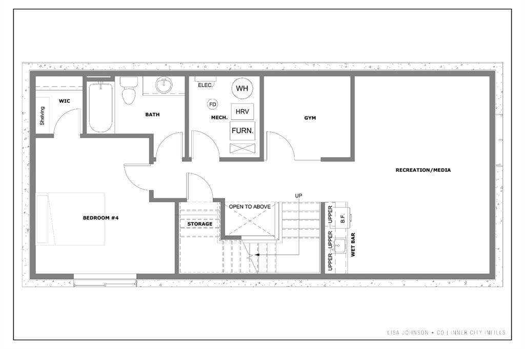
BRAND NEW semi-detached infill from ACE HOMES coming soon to MOUNT PLEASANT! Featuring +2,600 sq ft of living space, 4-beds, 3-full baths, open concept floor plan, modern farmhouse exterior, BUTLERS PANTRY with coffee counter, 2-way gas fireplace in living room, open-to-above stairwell, vaulted primary suite, walk-in closets in all bedrooms, and a private HOME GYM! The luxury touches are literally endless! The central kitchen has ceiling-height custom cabinetry, a modern tile backsplash, a built-in pantry, designer pendant lights, and a massive island with ample bar seating. The spacious living room focuses on a stunning 2-way gas fireplace offset with a built-in TV counter and enjoys easy access to the rear deck and backyard through dual glass sliding doors. Around the corner is a coffee counter/butler’s pantry with a bar sink and lots of cabinet storage and the large dining room offers a custom feature wall and oversized windows. The rear mudroom has tons of built-in storage, a built-in bench, and storage lockers. Upstairs, the primary suite features vaulted ceilings in the main area and ensuite, oversized windows, and a huge walk-in closet. The 5-pc ensuite features heated tile floors, quartz countertops, dual undermount sinks, a freestanding soaker tub, and a glass shower with a built-in bench and steam rough-in. Two additional good-sized bedrooms, each with walk-in closets, share the 4-pc bath with modern vanity and a fully tiled tub/shower combo. A formal laundry room completes the upstairs with a sink and custom cabinetry. Downstairs, the fully developed basement has a large 4th bedroom, a spacious rec room with a full wet bar, and a convenient separate home gym space. Mount Pleasant is a beautiful, mature community made for families and professionals alike. Situated in a fantastic location, steps to the park and North Mount Pleasant Arts Centre. Even closer to 4th Spot Kitchen & Bar, Milk Ice Cream, and Velvet Café, eating options are abundant and convenient! Within walking distance to St. Joseph Elementary Junior High School and Ecole de la Rose Sauvage, the neighbourhood is just as desirable as the home itself! *Photos are from a similar project, finishes may vary*