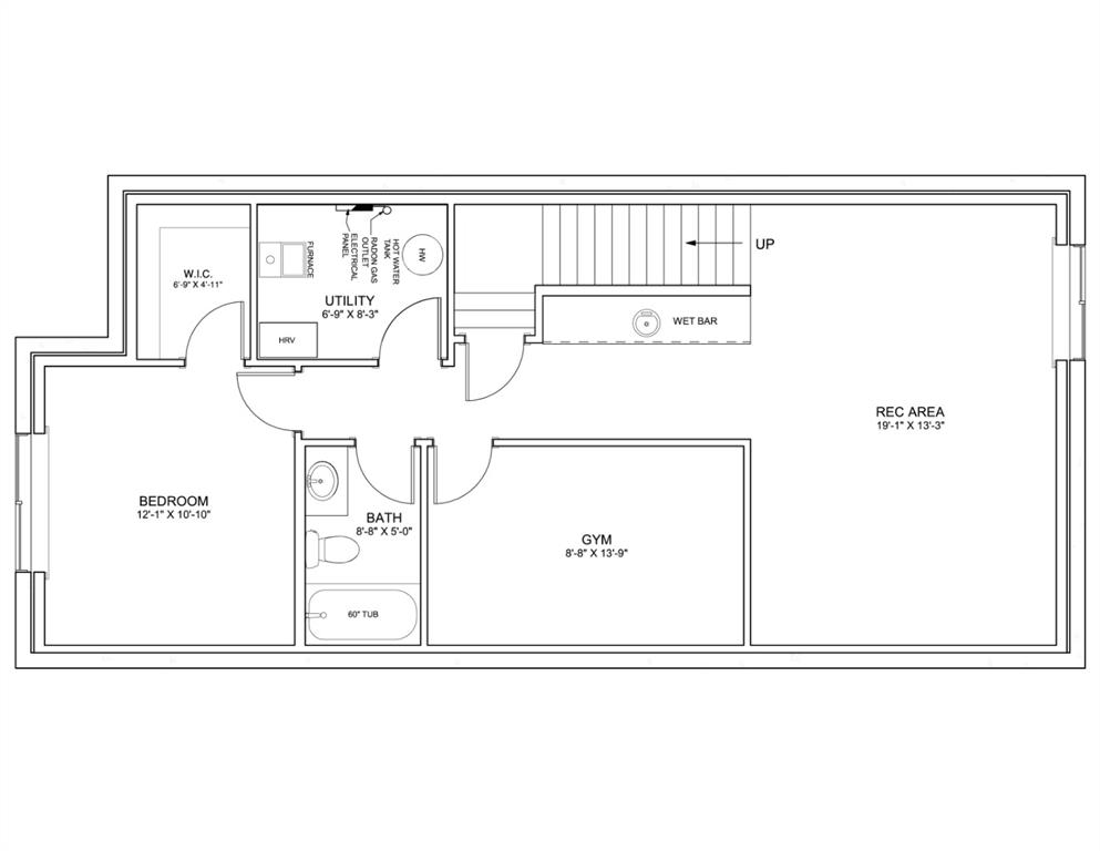
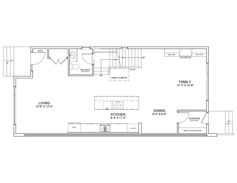
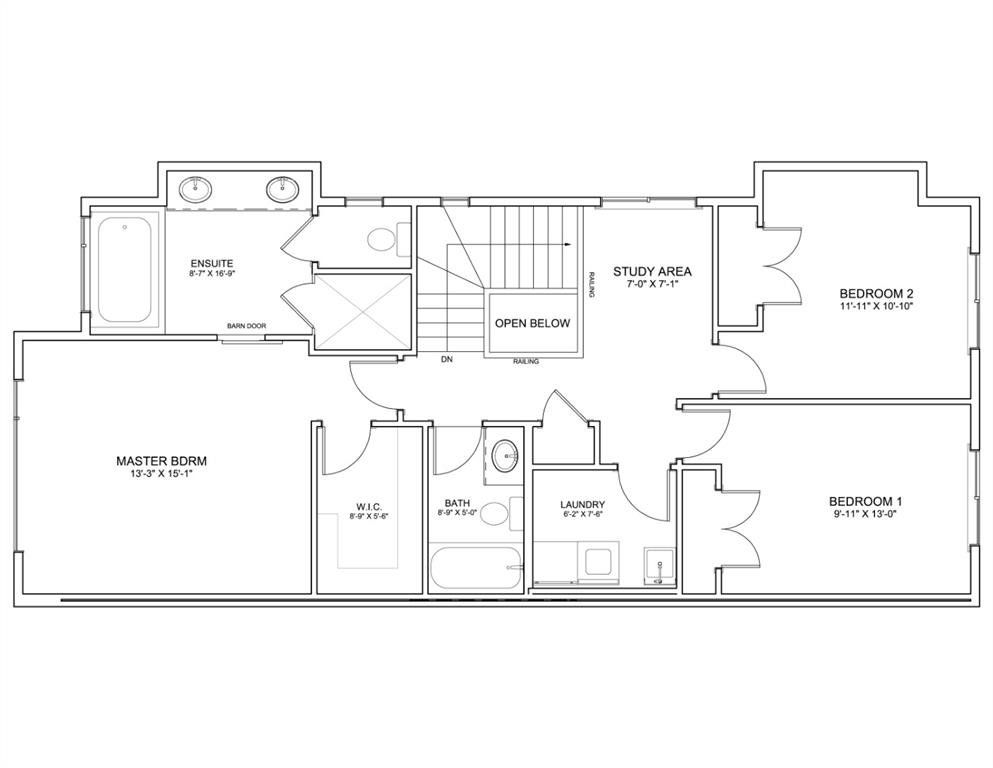
*Visit Multimedia Link for Floorplans & Details!* MOVE IN THIS FALL! This incredible new semi-detached, 2,608 sq ft infill is poised in an ideal spot right in the centre of Killarney and is a quick walk to the Killarney School and highly ranked Holly Name French Immersion School. Perfect for those with a preference for inner-city communities and wanting easy access to an abundance of amenities as well as quick access to DT. A sought-after modern farmhouse exterior creates excellent curb appeal, while the functional, open-concept floorplan features large primary living spaces, 4-bedrooms, 3.5-bathrooms, a bonus loft area, and a fully developed basement with a wet bar, large rec room, and a private gym space or home office. The home also boasts several upgrades, including 10-ft ceilings on the main floor, wide plank engineered hardwood flooring, a built-in sound system, and designer upgrades throughout. The custom-built kitchen features quartz countertops, ample cabinetry, a built-in pantry, modern tile backsplash, and a stainless-steel appliance package. The beautiful living room centres on a gas fireplace with a shiplap feature wall and full-height sliding glass doors for direct access to the back deck with a gas line for a BBQ. The second level features three large bedrooms, a spacious bonus room, two full bathrooms, and a full-sized laundry room with a sink. Downstairs, the fully developed basement features 9-foot ceilings and a large rec room with a custom floating entertainment unit. A large fourth bedroom with a walk-in closet and quick access to the 4-piece bathroom is perfect for overnight guests, and a private gym space includes a mirrored wall and a built-in sound system. Killarney is a popular inner-city community, home to several luxury estate homes and infills, and is a favourite among urban buyers for its upscale curb appeal, professional demographic, and family-friendly amenities, including close proximity to several public and private schools, parks, and playgrounds. Don’t forget to check out the multimedia links for all the details on this fantastic opportunity! *RMS are taken from builder’s plans and subject to change upon development.*