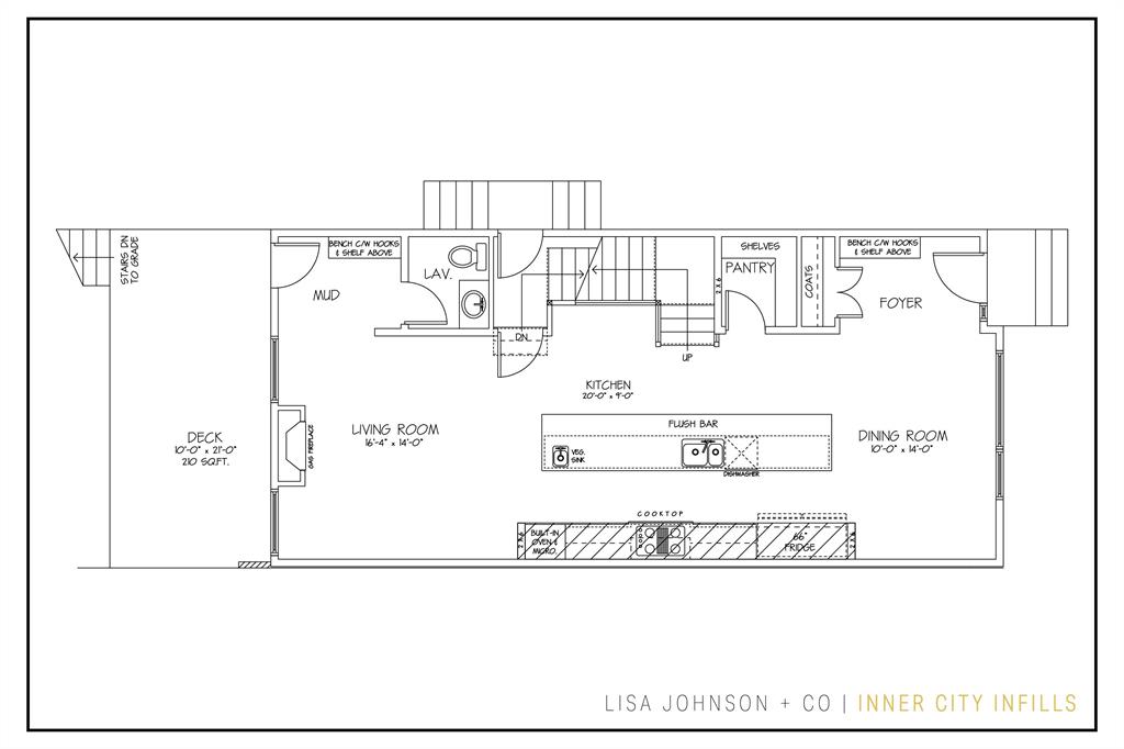
| MOVE IN AT THE END OF SEPTEMBER | Tile detailing, modern finishes, and a designer lighting package…it’s everything you’re looking for in a luxury SEMI-DETACHED INFILL w/ LEGAL BSMT SUITE (subject to permits & approval by city). Coming soon, this 2,634 sq ft home is located in the heart of Killarney – the ideal location for your new family home! The main floor enters into a spacious and welcoming foyer with a built-in closet and bench with hooks and views into the dining room. 10-ft painted ceilings and beautiful oak hardwood flooring lead you into the open concept kitchen – fully equipped with an oversized 18-ft island with quartz countertop with prep sink, timeless shaker-style cabinetry with lots of lower drawers, and an enormous walk-in pantry with extensive shelving. The designer kitchen is nicely finished with a full stainless steel appliance package, complete with a French door refrigerator, a built-in wall oven and microwave, a gas cooktop, and a built-in dishwasher. The striking living room features an inset gas fireplace between the two outside windows with full-height tile, a lovely addition to this welcoming, family-friendly space. Step out onto the raised back deck through the spacious rear mudroom, which features a built-in bench, cubbies, and designer tile flooring. As you head upstairs, the stylish powder room is tucked away off the lower landing with designer tile and a full-height mirror. The vaulted loft space awaits up the bright stairwell, perfect for an at-home workspace. The primary suite is as sleek and modern as the rest of the home, with oversized windows, a vaulted ceiling, an inset gas fireplace, and an extra-large walk-in closet! The chic ensuite features a vaulted ceiling, dual vanity with a quartz countertop and a bank of lower drawers, a freestanding soaker tub, and a stand-up shower with full glass walls, rain showerhead, and bench. Two secondary bedrooms enjoy built-in closets and modern coffered ceilings and share the main 4-pc bath. The laundry room features a sink, upper cabinetry, hanging rod, tile backsplash, and a folding counter. The living space continues into the 789 sq ft LEGAL BASEMENT SUITE (subject to approval & permits by the city) w/ a private entrance! The suite includes a full kitchen w/ electric range, refrigerator, dishwasher, and dual undermount sink complimented w/ quartz counters and a modern backsplash. The primary bedroom has a walk-in closet, and there’s a secondary bed plus den – perfect for a home office or gym! Finished off w/ a full 4-pc bath and private laundry. Killarney is the ideal inner-city community for any active family. Trendy shops and restaurants along 37th and 26th are easy to get to, including Luke’s Drug Mart, Inglewood Pizza, and Glamorgan Bakery. It’s also a leisurely bike ride to the Bow River and downtown, and you’re close to many schools, the Shaganappi Golf Course, Edworthy Park, and so much more! Move into this fantastic neighbourhood & home this Summer!