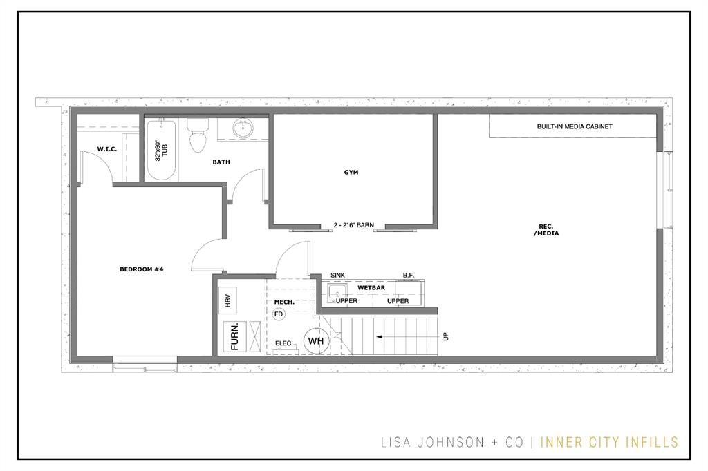
2750+ SQ FT DEVELOPED LIVING SPACE | SOUTH BACKYARD | MAIN FLOOR OFFICE W/ BUILT-IN DESK | VAULTED PRIMARY SUITE | HOME GYM | 3 ENSUITE BATHROOMS| Tuxedo Park is an up-and-coming infill community, featuring perks for families of any size! Not only is the curb appeal through the roof on this luxury SEMI-DETACHED home from Ace Homes, but you’re within walking distance to Unimarket, Lina’s Italian Market, Rosso Coffee Roasters, Safeway, plus multiple parks and schools! You’re a 5-min bike ride from Confederation Park, a 10-min ride from Nose Hill, and you can bike downtown in only 13-min! Talk about convenience! The convenience doesn’t end there – Ace Homes has thoughtfully thought out every square inch of this highly upgraded home. The open-concept main floor features a chef’s inspired kitchen with ceiling-height custom cabinetry, a modern tile backsplash, designer pendant lights, and a vast 15-ft island with ample bar seating, plus under-counter feature lighting for a truly contemporary aesthetic. Choose your appliances with a $12,000 appliance credit and store your small appliances neatly in the large built-in pantry. The spacious living room centres on a stunning gas fireplace with a full-height tile surround and built-in shelving and sits next to the 8-ft glass patio doors, nicely combining your indoor/outdoor living spaces. The large dining room offers oversized windows, allowing lots of natural light into the home, and the private home office with a barn door entrance features a built-in desk with upper cabinetry and a window. The front foyer and back mudroom both host built-in benches, and the mudroom has a built-in closet and access to the elegant 2-pc powder room. Upstairs, the luxurious primary suite showcases soaring 15-ft vaulted ceilings, oversized windows, and dual walk-in closets! The spa-inspired ensuite is elegantly finished with heated tile floors, quartz countertops, dual under-mount sinks, a stand-alone soaker tub, and a stunning glass shower with a built-in bench, body jets and steam rough-in. Two additional bedrooms each feature their own private 4 PIECE ENSUITES and built-in closets (one being a walk-in closet). Downstairs the fully developed basement has upgraded carpet, a large 4th bedroom, and a spacious rec room with a wet bar. Rare for many homes, this level also features a fully loaded HOME GYM area with a double barn door entrance, a wall-mounted mirror, and built-in ceiling speakers with a separate control zone. Tuxedo Park is a great family-oriented neighbourhood conveniently located close to all amenities and just minutes from downtown and is the perfect place to call home!