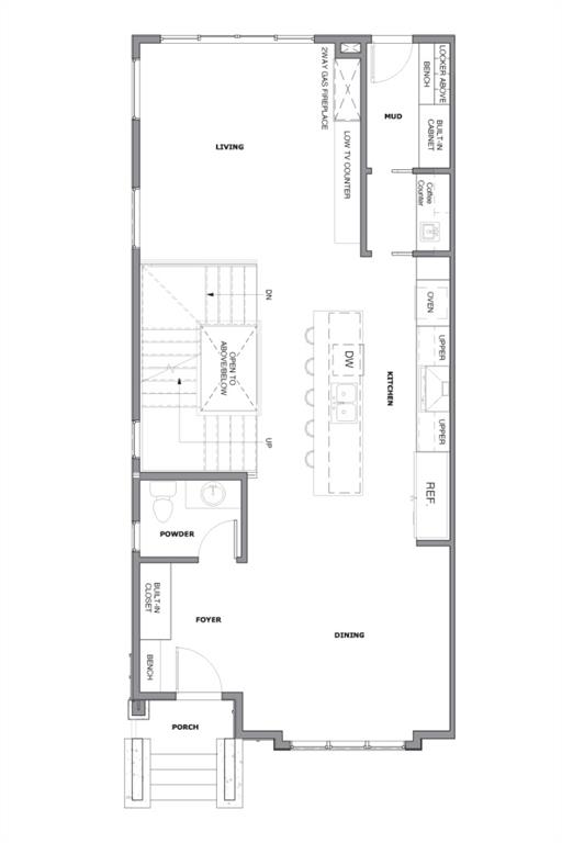
MOVE-IN SPRING 2022! Built on a quiet street, this BRAND-NEW semi-detached infill by Ace Homes offers top-notch finishes with nearly 1,831 ft of living space above grade, plus 4 BEDROOMS and 3 FULL BATHROOMS. The open-concept main floor features a chef’s inspired kitchen with ceiling-height custom cabinetry, a modern tile backsplash, dual built-in pantries, designer pendant lights, and a massive island with ample bar seating, plus under-counter feature lighting for an ultra-lux aesthetic. This property also includes a $12,000 credit for appliances. The spacious living room centres on a stunning gas fireplace feature wall with a full-height tile surround. Off this space, you have easy access to the rear deck and backyard through dual glass sliding doors, nicely combining your indoor/outdoor living spaces. Finishing off this level, the large dining room offers a custom feature wall and oversized windows, allowing lots of natural light into the home. Upstairs the elegant master suite features soaring vaulted ceilings, oversized windows, and a walk-in closet with ample storage for both his and her needs! The spa-inspired master ensuite is elegantly finished with heated tile floors, quartz countertops, dual undermount sinks, a stand-alone soaker tub, and a stunning glass shower with a built-in bench, body jets and steam rough-in. Two additional good-sized bedrooms open onto a large bonus room with custom built-ins, perfect for another office or flex space for the family. Nicely finishing off the upper floor is a 4-piece bathroom with tile floors, modern vanity and a fully tiled tub/shower combo. Downstairs the fully developed basement has upgraded carpet w/ 10lb underlay, a large 4th bedroom, and a spacious rec room with a wet bar. Rare for many homes, this level also features a fully loaded home gym area, with a wall-mounted mirror, hard surface flooring and built-in ceiling speakers with a separate control zone. Tuxedo Park is a great family-oriented neighbourhood conveniently located close to all amenities and just minutes from downtown! **RMS measurements derived from builder’s plans & subject to change upon completion**