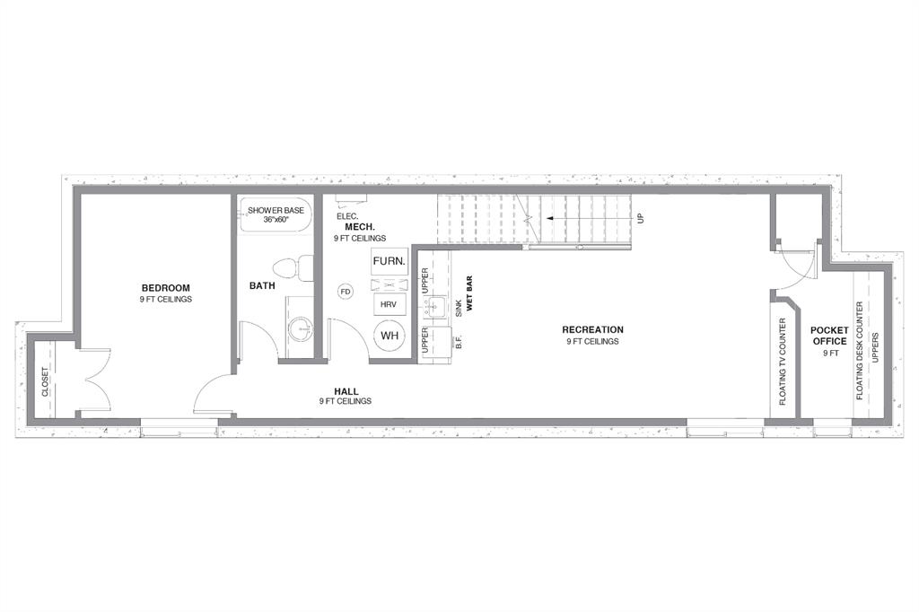
MOVE IN THE END OF JANUARY! Prepare to be blown away w/ this ULTRA-LUXURY MODERN FARMHOUSE coming to HILLHURST! This DETACHED home with over 2,800 total square feet, extensive CUSTOM MILLWORK, plus other DESIGNER UPGRADES throughout makes this a dream home opportunity – thanks to the incredible design masterfully crafted by John Trinh & Associates. JTA Design provides you with the highest standards of design and quality, creating award-winning homes for your family that are unparalleled in creativity and ingenuity. Perfectly placed in the heart of Hillhurst , you have everything that Hillhurst, Kensington, and the West Village have to offer while enjoying a quiet neighbourhood. Stylish and functional, discover luxurious finishings on the main floor with soaring 11’ ceilings, 8’ passage doors, and wide-plank hardwood flooring. The kitchen features quartz countertops, custom cabinetry with soft-close hardware, under cabinet lighting, pull-out spice drawers, and a hidden walk-in pantry w/ built-in shelving. The oversized central island has LED skirting, bar seating, and space for a built-in beverage fridge. The premium stainless steel appliance package includes an oversized counter depth fridge, gas cooktop and a built-in wall oven/microwave. Impress guests in the lavish front dining room that overlooks the PRIVATE FRONT PATIO w/ a modern chandelier. After dinner, lounge in the rear living room w/ a built-in TV wall and inset gas fireplace w/ a ceiling-height modern tile surround. 8’ patio doors take you out to the back deck for summer BBQs or head out through the side door through the fantastic mudroom, complete w/ a built-in bench, cabinets, and a full walk-in closet. A wood-wrapped staircase leads upstairs to more hardwood flooring, 9’ ceilings, and 8’ doors. The primary suite enjoys a grand entrance w/ 12’ high vaulted ceilings and a custom arch window! A massive walk-in closet has more built-ins, and the private 5-pc ensuite has a glass shower w/bench, freestanding soaker tub, dual vanity, and heated tile floors. 9’ ceilings in the fully developed basement create a spacious rec area with a wet bar w/ quartz counter, sink, and upper cabinetry. A quiet pocket OFFICE with a built-in desk, fourth bedroom, and main 4-pc bath round out the lower living space. Other upgrades include rear deck, low maintenance landscaping and metal-clad doors with glass. Just off 14th Street and Kensington Road is the quiet community of Hillhurst – where you’re only two blocks away from the Bow River pathway system, a 7-min walk to Made by Marcus and Dairy Lane Café, and moments from Kensington, 14th St, 16th Ave, and Memorial Dr – surrounded by walkable amenities, schools and parks, everything you need is within reach!