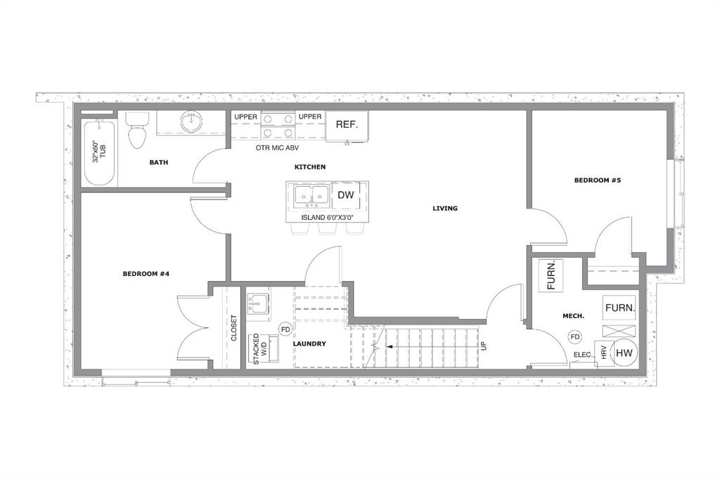
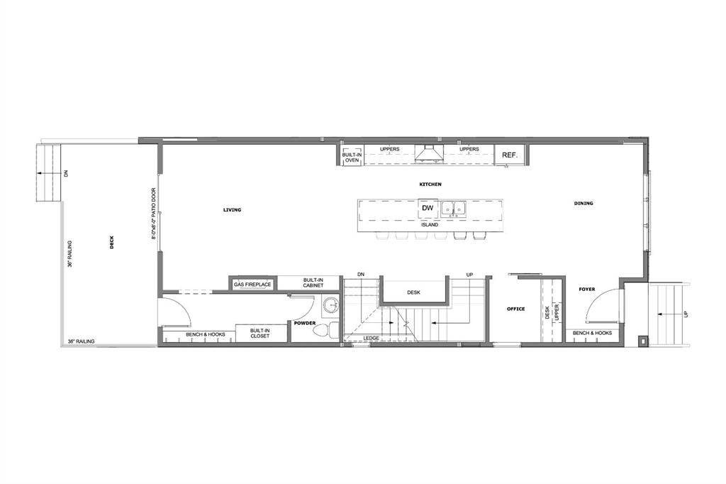
Live, work, and play in this semi-detached infill w/ 2-BED LEGAL BASEMENT SUITE (subject to permits & approvals by the city), coming to ROSSCARROCK this fall! This upscale, modern home offers your family a lifestyle unlike any other – highly walkable, trendy shops/restaurants, and some of the city’s best outdoor recreation options. This 1932 sq ft luxury home offers a well-thought-out floorplan including a MAIN FLOOR OFFICE, VAULTED PRIMARY SUITE, & OPEN CONCEPT FLOORPLAN ON MAIN & LOWER LEVELS! And no finishing detail has gone unnoticed. LED detail lighting is found throughout the home, including in the kitchen, along the stairwell, and in the primary ensuite, while the rest of the designer lighting package is meticulously chosen to highlight the home’s upscale feel. The open-concept main floor features more storage than you bargained for, with lots of kitchen cabinetry, a large built-in pantry, built-in cabinets in the living room, and an oversized mudroom with a built-in closet. The kitchen has an oversized island, quartz countertops, a modern backsplash, and open display shelving. The spacious living room has an incredible fireplace with full-height surround and built-ins on one side, with 8’ sliding glass doors to bring you onto the large, WEST BACKYARD with private back deck. Complete with a home office with a barn door, window, and built-in desk with upper storage, a formal dining room, and a luxurious powder room. Upstairs, find 3 generous-sized bedrooms, all with ENSUITES, and a tiled laundry room with upper cabinetry and a sink. The primary suite features vaulted ceilings, DUAL WALK-IN CLOSETS with built-in shelving, and a 5-pc ensuite with barn door entrance, freestanding soaker tub, double vanity, and remarkable stand-up shower with bench. The 2x secondary bedrooms each have a private 4-pc ENSUITE and large windows. Downstairs, the basement offers an amazing private living space with a LEGAL SUITE (subject to permits & approvals by the city), fully equipped w/ a large open concept kitchen/living/dining room w/ quartz counters, central island, and lots of upper & lower cabinetry. Two good-sized bedrooms are perfect for roommates or a home office set up for a couple, w/ a modern 4-pc bath & separate laundry rounding out this contemporary space. Other highlights include a double detached garage, a large deck with railings, A/C rough-in, and a full landscaping package. Rosscarrock is an up-and-coming infill community with an ideal mix of nature and culture, great for families with an almost endless number of amenities nearby! You’re located close to all amenities, schools, LRT, Shaganappi Point Golf Course, the Bow River Pathways, and just minutes from downtown via Bow Trail! This home is within walking distance of Edworthy Park and the Douglas Fir Trail, perfect for active families. **This home is under construction with plenty of time customize the finishes**