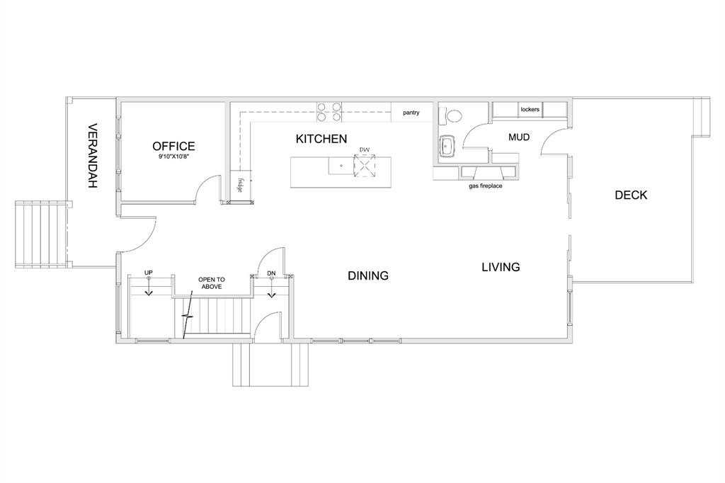
This is your opportunity to customize a brand-new DETACHED INFILL w/ proposed 2-bedroom BASEMENT SUITE* in peaceful Capitol Hill! The open concept layout of this 2-storey, 2,204 sq ft modern home is perfect for growing families or those looking for a great revenue opportunity. Enjoy the perks of this centrally-located community – including an effortless commute to downtown, SAIT, & UoC by CTrain or car; quick access to shopping along 16th Ave or Kensington; and being within walking distance to both Confederation Park & Riley Park! During the day, work in the bright, South-facing private office overlooking the front verandah, then when it’s time for dinner, the family can spread out in the spacious kitchen w/ oversized 10’ island w/ bar seating. Choose the right appliances for you w/ the $12,000 appliance credit, and match the ceiling-height lacquered cabinets and quartz countertops to your preferred style. The bright living room acts as a welcoming hub, with direct access to the back deck through large 8-foot sliding glass doors and the kitchen and dining room views. The rear mudroom features built-in lockers and a bench, keeping everyone organized as they head in and out of the house. The master suite enjoys a vaulted ceiling and large walk-in closet w/ built-in shelving, while the ensuite features a bard door entrance, heated floors, a drop-in soaker tub, a fully tiled shower w/ bench and quartz counters. The upper floor also includes two secondary bedrooms, a full laundry room w/ folding counter and sink, the main bath, and an open stairwell. Enter the lower level through the kitchen or a private, separate entrance off the side of the home. The 2-bed legal basement suite features a full kitchen w/ lacquered cabinets, dual undermount sink, fridge, range, and built-in dishwasher. There’s also a spacious living room, separate dining room, 3-pc bath, and in-suite laundry. Don’t miss your chance to own new in this up-and-coming inner-city neighbourhood in this incredible, modern home! *Pending final city inspection & approval. **RMS measurements derived from builder’s plans & subject to change upon completion**